Condominio Circus Goodlife Apartment Breuil-Cervinia
Condominio Circus Goodlife Apartment
Preview only — see all hotel photos
See all 21 photos 1 /
21
6.9
25 recenzí
Best options for your travel dates
Zobrazit hotel na mapě
Condominio Circus Goodlife Apartment
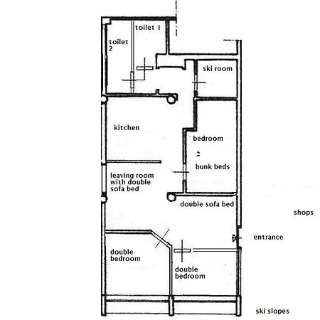
Condominio Circus Breuil-Cervinia se nachází 20 minut chůze od Cieloalto a 11 minut chůze od Chiesetta della Madonna delle Nevi. Toto ubytování má 2 ložnic, 2 koupelen a kompletní kuchyni s toustovačem a troubou.
Ubytování je 5 minut chůze od centra města Breuil-Cervinia. Podávající jídla Mediterrane keuken, Even 2 je asi 20 minut chůze.
Condominio Circus je 125 km od letiště Turin. K dalším dostupným službám patří solárium.
Více +
Méně -
Čekejte prosím, ověřujeme pro vás volné pokoje.
Vyhledávání hotelů
Vybavení
Vybavení Pokoje
- Wi-Fi
- Aktivity
- Lázně a relaxace
- Jídlo/Pití
- Vhodný pro děti
- Bezbariérový přístup
- Domácí zvířata
Vybavení
Všeobecný:
- Zákaz kouření na místě
- Wi-Fi
- Parkoviště
- Bezpečnostní schránka
- Domácí zvířata povolena
- Pokoje/ Zařízení pro tělesně postižené
- Bezbariérový přístup
- Ostraha
- Přímý přístup ke sjezdovkám
- Úschovna lyží
- Bankomat
- Holičství
- Prodejní automaty
- Hasicí přístroje
Večeře:
- Rychlovarná konvice
- Kuchyňské potřeby
- Restaurace
- Snack bar
- Bar/ hala
- Speciální dietní menu
Sport a zábava:
- Sluneční terasa
- Zahrada
- Lázně a centrum wellness
- Solárium
- Masáže zad
- Masáž hlavy
- Masáž celého těla
- Masáž nohou
- Lyžařská škola
- Turistika
- Jízda na koni
- Tenisový kurt
- Golfové hřiště
- Rybolov
Služby:
- Pronájem lyží
- Prádelna
- Prodejce skipasů
- Obchodní služby
Vybavení pokoje:
- Topení
- Sedací kout
- K dispozici čaj a káva
- Jídelní stůl
- LCD TV
- Dětský bufet
- Parketová podlaha
Politika
Přihlášení: od 16:30 do 18:30
Odhlášení: od 09:00 do 11:00
Číslo licence0524,IT007071C22WMPFAME
- Děti a přistýlky
- V pokoji není k dispozici žádná přistýlka.
Mapa
Místní zajímavosti
Památky
- Cable car Plateau Rosà (500 m)
- Cable Car Breuil - Plan Maison (750 m)
Letiště
- Turin Airport (121 km)
Vlaková nádraží
- Riffelberg (12 km)
Recenze
Napište recenzi
100% ověřené recenze
6.9 /10